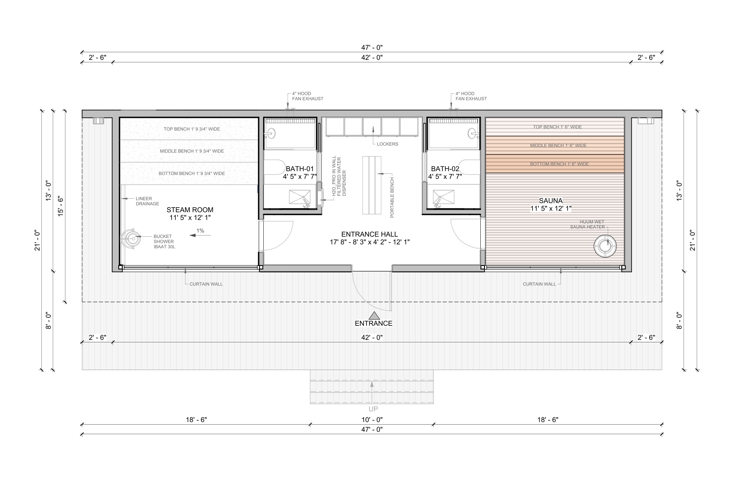
A modular spa designed for boutique hotels, resorts, and wellness centers, combining modern elegance with functional design. Flooded with natural light through floor-to-ceiling Mirropane glass, it creates a bright, calming, and private wellness environment. Thoughtfully designed for comfort and style, this spa offers a serene escape with a minimalist and luxurious ambiance. Perfectly sized to complement any wellness-focused setting, it redefines relaxation with sophistication.
Sauna and Steam Room
Modern Modular
Sauna and Steam Room
Sauna and Steam Room
Details
Brochure Available
DownloadExterior Dimensions
42' W × 13' L × 12' H
546 sq. ft.
Foundation
- Concrete basement or Crawlspace
- Screw piles
- Concrete piles
Accomodations
Flexible wellness spaces designed for relaxation and comfort
Available Options
Construction
- Frame: Welded W8 Steel frame
- Wall Framing: 2x4 Cold Formed Steel
- Insulation: 2lb Spray foam
- Cladding: Metal cladding
- Roofing: Standing Seam metal
- HVAC: Electric Air Source heat pump with ERV
- Electrical: 100A Electrical Panel
- Plumbing: 30-gallon High Efficiency HWT
Let's Get Started
Explore










