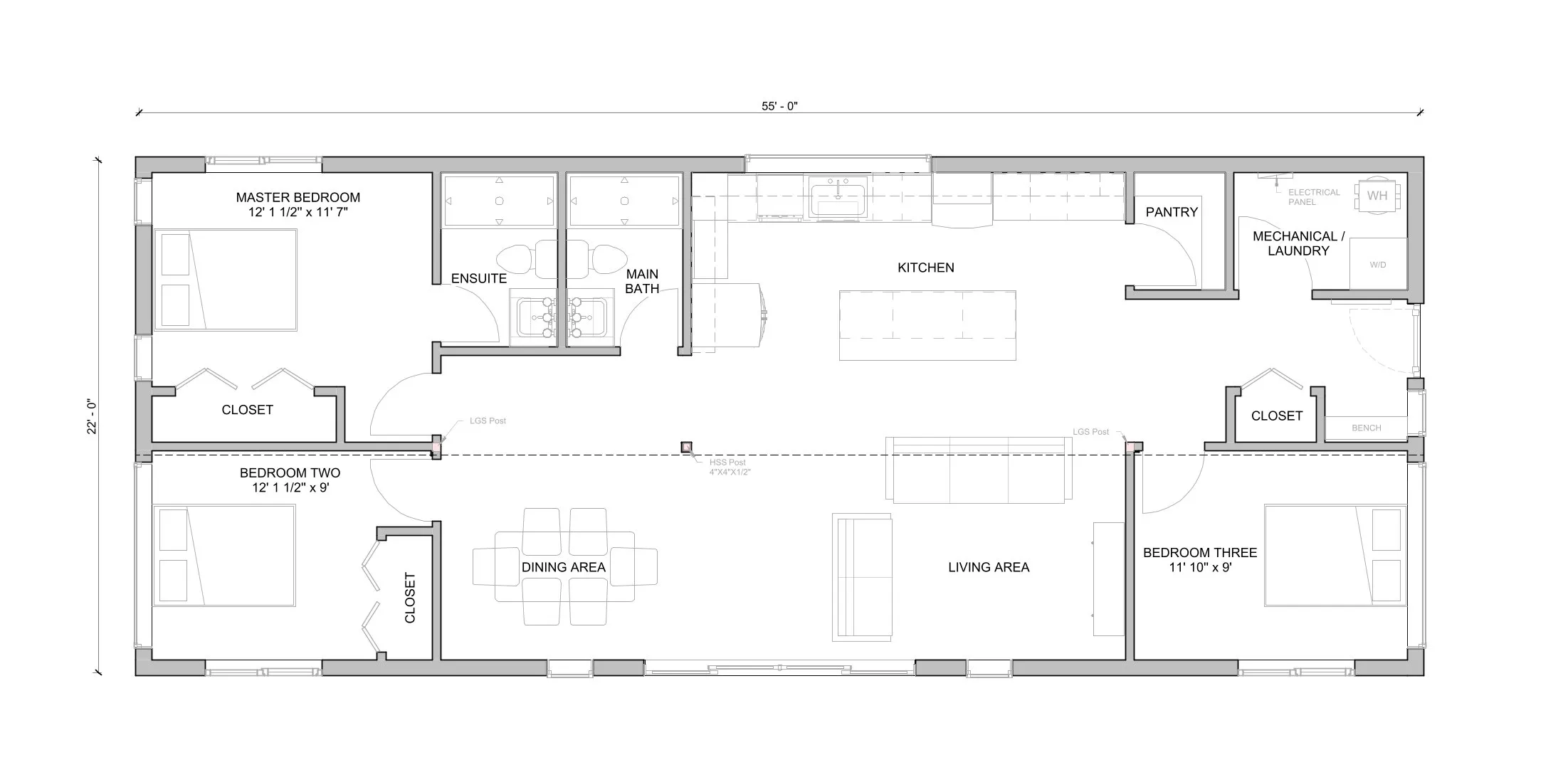
Presenting, the Alpine 1200 - our grandest modular home designed to exceed every expectation. With three bedrooms, two bathrooms, and a spacious living area, the Alpine 1200 offers unparalleled space for families, hosting guests, or accommodating your work-from-home needs. This expansive layout is crafted for those seeking more than just a home; it's a haven that blends comfort, adaptability, and ample room for every aspect of your dynamic lifestyle. Welcome to a residence that goes beyond meeting needs; it defines a new standard in modern living.
















