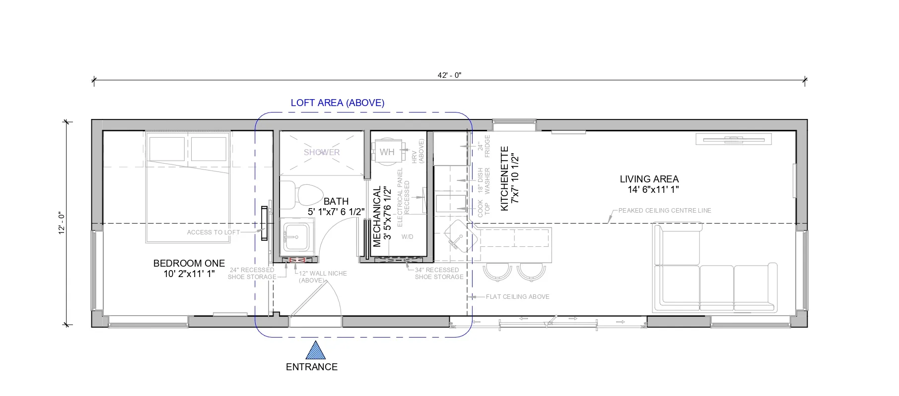
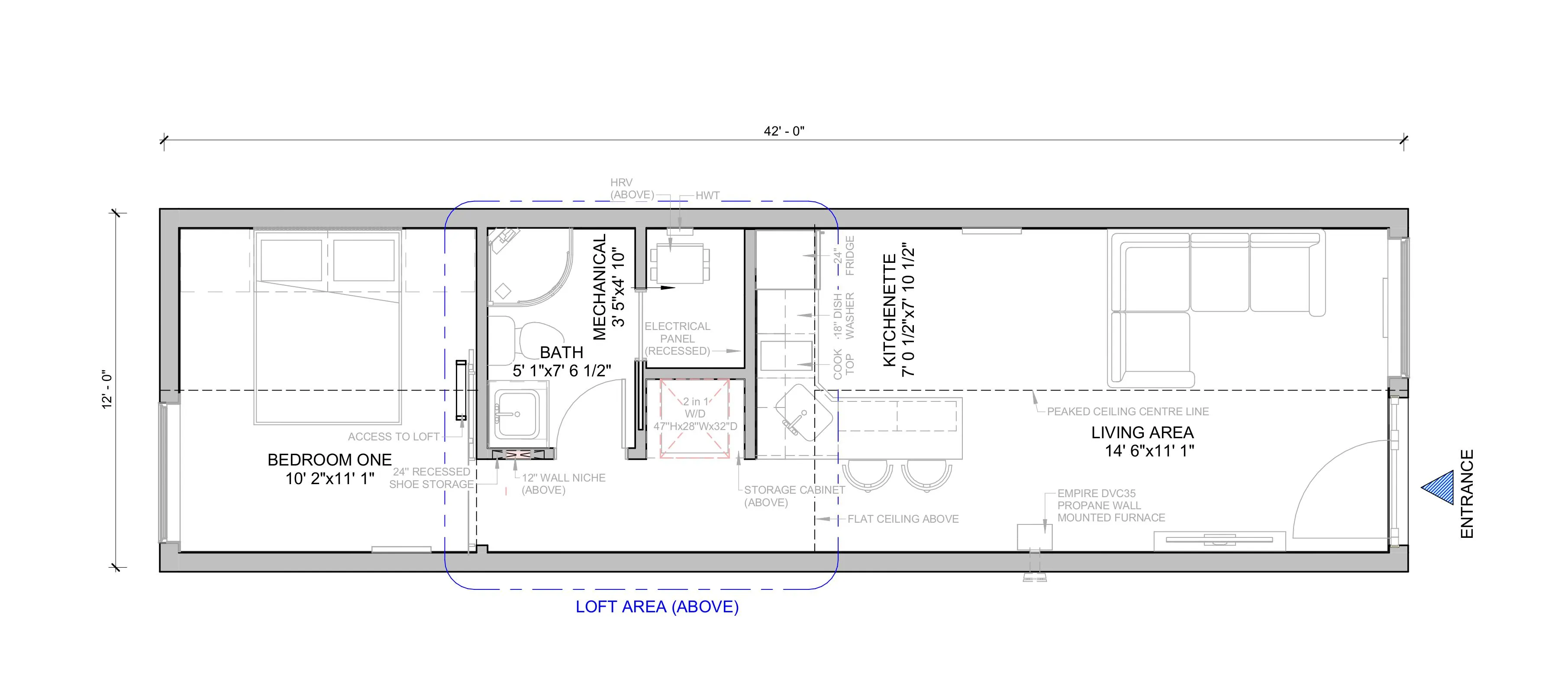
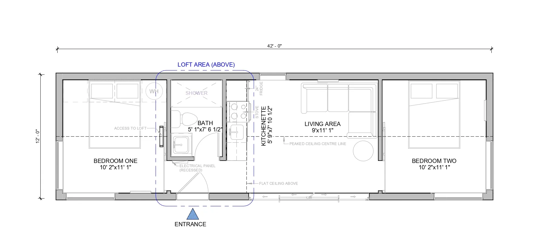
Introducing a modern prefab two-bedroom plus loft unit designed for contemporary living. This versatile space features large windows, a spacious sleeping loft, one full bathroom, and a vaulted ceiling. The open-concept design maximizes natural light, seamlessly blending the living room, dining area, and a well-equipped kitchenette. The loft offers a private and flexible space, perfect for use as a play area or an additional sleeping quarters, especially for kids. With its sleek exterior, sustainable features, and low-maintenance design, this unit embodies modern comfort and efficiency. Ideal for families or individuals seeking a stylish and functional living space, this two-bedroom plus loft unit combines contemporary aesthetics with thoughtful use of space.




-min.jpg)

-min.jpg)












