Sauna & Steam Room

Spa-like Relaxation
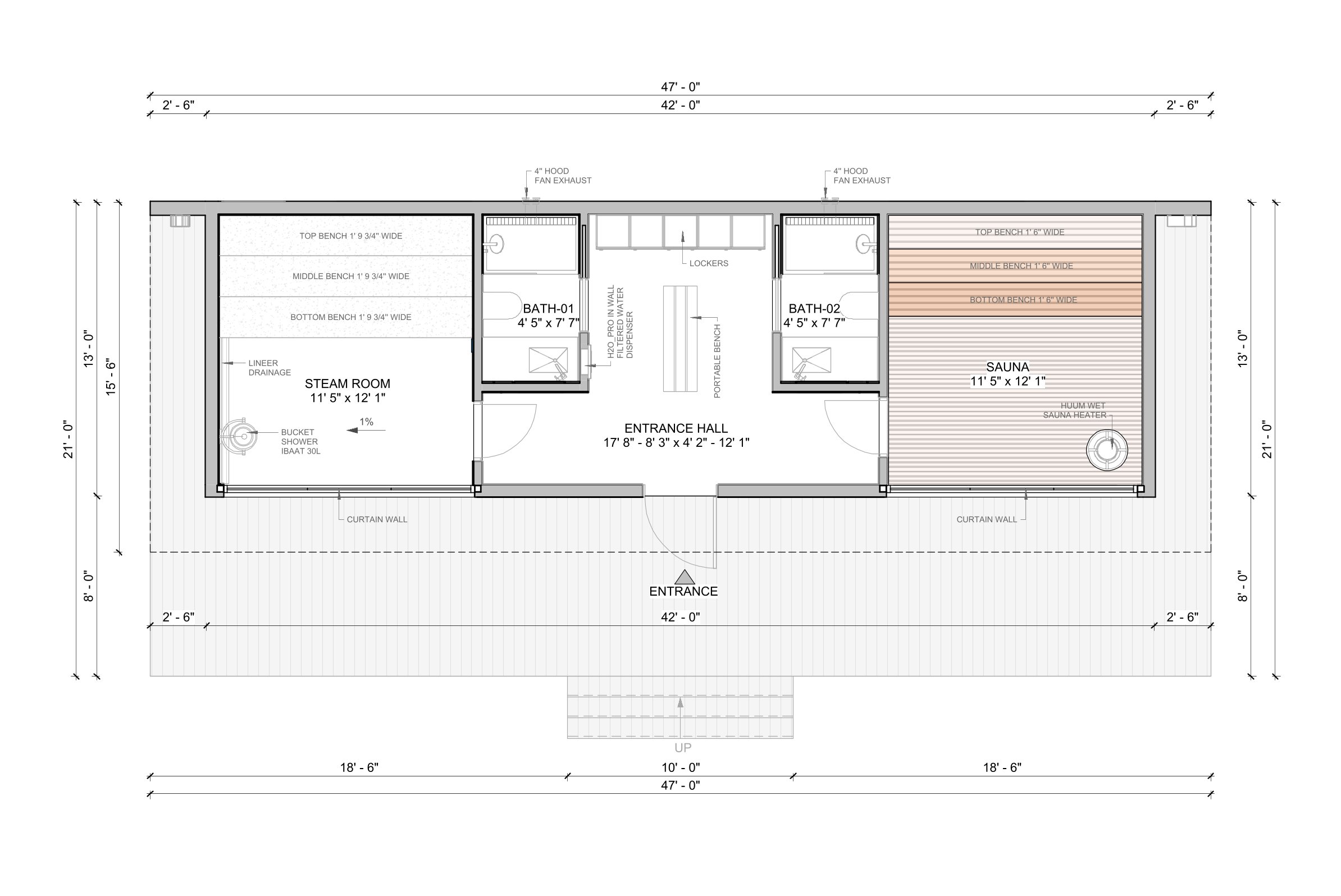
You can almost feel the immediate relaxation as you walk into the bright and welcoming lobby. You'll be met by a bank of lockers where guests can securely store their belongs. Flanking the lockers are two thoughtfully designed washrooms that include showers for your guests comfort. From here, move into the serene steam room or rejuvenating sauna, designed for ultimate relaxation. Both rooms boast floor-to-ceiling Mirropane finished glass allowing natural light to create a calming atmosphere while maintaining complete privacy.
A luxurious wellness escape designed for serene luxury and ultimate relaxation in a modular format, combining modern elegance with functional design. Whether for a resort, boutique hotel, or wellness center, the Sauna & Steam Room model redefines relaxation with sophistication and style.

The FloorPlan
Spanning 546 sq. ft. (42' W × 13' D × 12' H), the modular design is perfectly sized to enhance any wellness-focused environment, and offers a minimalist, elegant, and soothing ambiance for an unforgettable escape.
Its all in the Detials
Our innovative modular design brings nature and relaxation together, allowing you to create a personalized wellness retreat that fits your space. Crafted with premium materials and engineered for easy installation, our sauna and steam room model combines the soothing benefits of traditional saunas and steam rooms with modern aesthetics.
From the floor-to-ceiling Mirropane finished glass windows that create an open, airy ambiance to the three tiered benches that offer exceptional comfort for guests, whether they choose to enjoy a soothing steam session or the invigorating heat of a sauna, every detail is crafted with sleek wood finishes, blending natural warmth with contemporary style to create a welcoming environment that invites relaxation and rejuvenation. The Sauna & Steam Room model is more than a spa—it’s a sanctuary of comfort and sophistication.
Explore the gallery below to see how our modular sauna & steam room solution transform spaces into serene sanctuaries.








