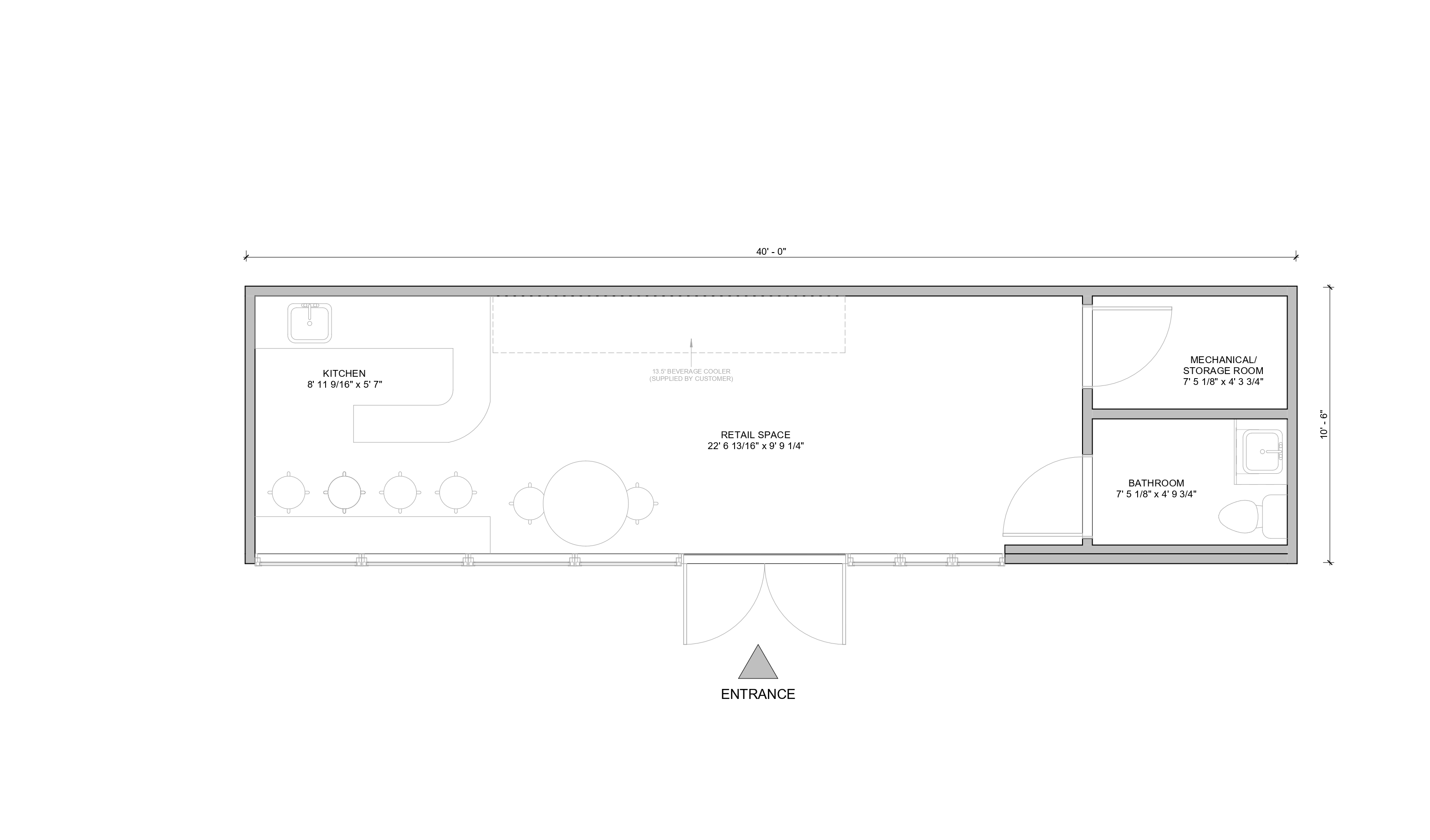
Showcase your brand in a sleek, modern retail environment designed to attract customers and boost sales. This versatile space features a flexible layout that adapts to any retail concept, while large windows fill the interior with natural light to create a bright, welcoming atmosphere. Designed for maximum customer engagement, this space is perfect for pop-up shops, kiosks, or innovative commercial ventures. Elevate your products, impress your clients, and maximize your retail potential with this turnkey solution.
Retail Space
Modern Modular
Retail Space
Retail Space
Details
Brochure Available
DownloadExterior Dimensions
10’6"W x 40’L x 12”H
420 sq. Ft.
Foundation
- Concrete basement or Crawlspace
- Screw piles
- Concrete piles
Accomodations
Flexible space for retail displays and customer interaction
Available Options
Construction
- Frame: Welded W8 Steel frame
- Wall Framing: 2x4 Cold Formed Steel
- Insulation: 2lb Spray foam
- Cladding: Metal cladding
- Roofing: Standing Seam metal
- HVAC: Electric Air Source heat pump with ERV
- Electrical: 100A Electrical Panel
- Plumbing: 30-gallon High Efficiency HWT
Let's Get Started
Explore


.jpg)
.jpg)
.jpg)
.jpg)
.jpg)
.jpg)
.jpg)
.jpg)


